Cabin Haugastølen
Cabin 2026 · Øystre Slidre, Norway · Area 70 + 20 m2 · Engineer/CLT Norsk Massivtre AS · Entrepreneur Øystre Slidre Tømrarlag
At the shore of Lake Vinstre, the cross-shaped plan translates the history
of the traditional farmstead into a modern mountain retreat.
Haugastølen is situated 1,037 meters above sea level, located directly on the water’s edge by Lake Vinstre in Øystre Slidre. Historically, the Vinstre area has been characterized by an extensive summer farming culture where mountain pastures were vital for the farming operations down in the valley. Before road connections were established in the mid-20th century, the lake was the main artery for transport, and at its peak, milk was collected by boat from over 40 active summer farms along its shores. The new building is an interpretation of the traditional summer farm buildings in the area, with the design inspired by the original buildings on the site.
The property has been in the owner’s family for several generations. The owner inherited Haugastølen from his mother in 1982, who in turn had inherited it from her parents. The original timber-framed cabin from around 1900 was marked by extensive settlement damage due to challenging ground conditions consisting of a mix of marsh and rock. As the original foundation shifted several centimeters annually, it became necessary to construct a new cabin that simultaneously safeguards the site's character.
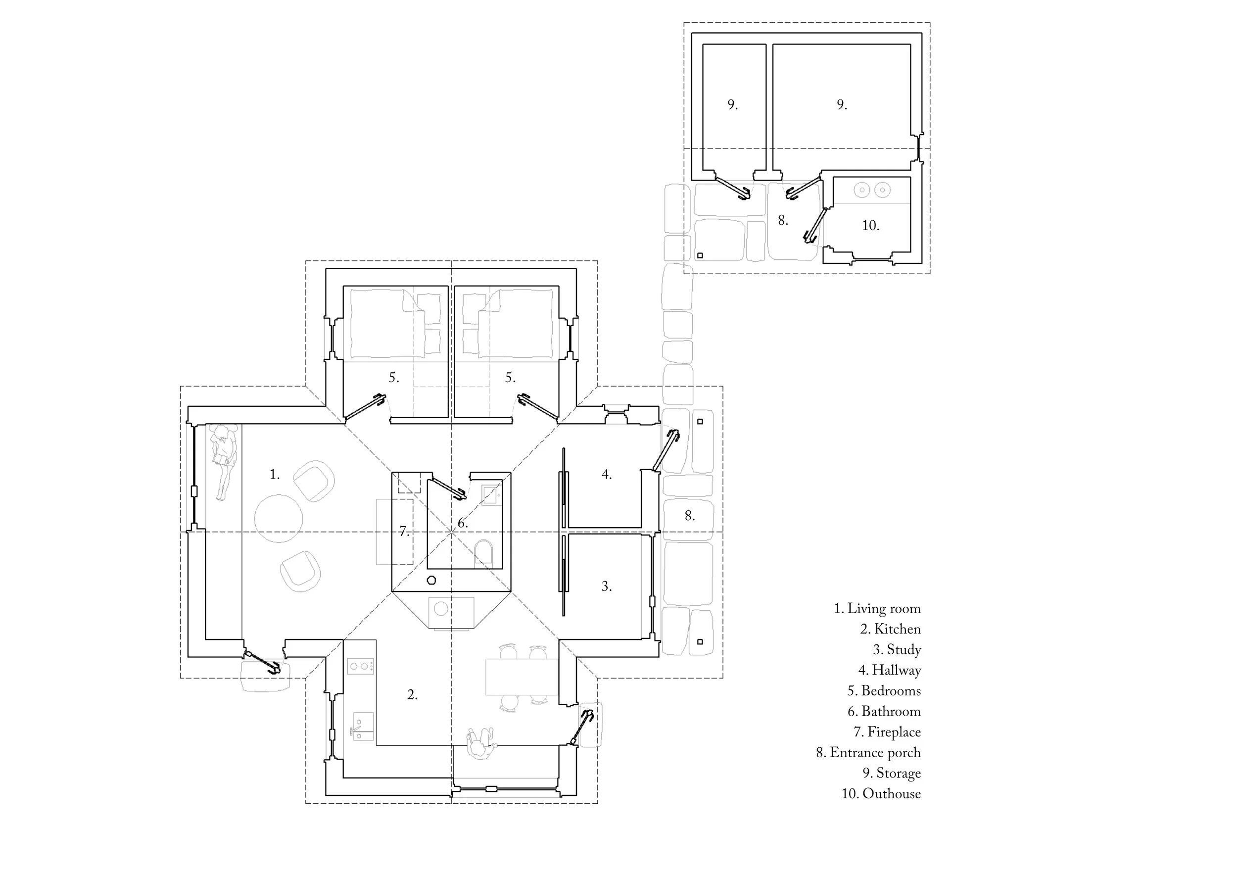
The new farmstead consists of a main building of 70 m2 as well as an outbuilding of 20 m2 built-up area - corresponding to the maximum permitted size for development in the area. For the main building, the layout is resolved within a symmetrical cross-shaped plan. The main building functions as an architectural anchor to the original farmstead that had to be demolished. The former development consisted of two gable roof volumes, and by continuing this into a full cross-shaped plan with two overlapping gable roofs, the historical orientations and the original placement on the site are maintained. In addition, a new axis toward the west is introduced, which is important regarding living quality, views, and solar conditions.
The cabin is organized around a central core that is open to each of the four wings. The core houses the bathroom, fireplace, wood niches, and space for a wood-fired stove connected to the kitchen. The wings are programmed according to the cardinal directions and the proximity to the water: the living areas, featuring the kitchen and living room, are positioned toward the south and west respectively to utilize solar conditions, daylight, and views over Lake Vinstre and the nearest mountain peaks to the west. The bedrooms are gathered in the north wing, while the east-facing gable houses a covered entrance area. With a ridge height of only 3.95 meters, the building is adapted to the height of the other original farmsteads along Vinstre.
The primary construction of the walls and roof is executed in Cross-Laminated Timber (CLT). CLT was chosen to handle the very short construction season in the high mountains, where prefabricated elements offer a significant advantage regarding construction time. Simultaneously, the CLT elements provide the interior with a warm and unified character. The cabin is designed for a modern off-grid lifestyle; solar panels are placed on parts of the roof surface with an accompanying battery bank, along with provisions for high sanitary standards in the main building, in addition to a traditional outdoor toilet in the outbuilding.
Externally, the cabin is clad with board-on-board cladding consisting of overlapping and underlapping boards of the same width. The cladding gives the facade a distinct relief effect with clear vertical shadow surfaces, which is also typical for many of the original summer farms in the area. The building is painted in a deep red color, based on color analysis of the original structure, and the roofs are finished as painted wooden roofs with a pitch of 27 degrees and the same color scheme.
Large window sections in the living room and kitchen are designed in accordance with the municipality's requirements for the subdivision of glass surfaces. Each of the large windows is divided into three sections, where the square section that can be opened has a heavier frame. This framing provides an experience where elements of the surroundings are framed and appear as pictures on the wall when viewing the landscape from within.